Frankfurt Kueche

Frankfurter Kuche Luxuskuchen Luxus Kuche Design Minimalistische Kuche

Frankfurter Kuche Luxuskuchen Luxus Kuche Design Minimalistische Kuche

Margarete Schutte Lihotzky Frankfurter Kuche Siedlung Romerstadt De Ernst May 1926 Bauhaus Interior Bauhaus Mobel Kuche Dachschrage

Margarete Schutte Lihotzky Frankfurter Kuche Siedlung Romerstadt De Ernst May 1926 Bauhaus Interior Bauhaus Mobel Kuche Dachschrage

Frankfurter Kuche Kuche Diy Kucheninsel Moderne Kuche

Frankfurter Kuche Kuche Diy Kucheninsel Moderne Kuche

Frankfurter Kuche Aus Den 1930er Jahren Bauhaus Kuchen Mobel Kuchenmobel

Frankfurter Kuche Aus Den 1930er Jahren Bauhaus Kuchen Mobel Kuchenmobel

Rare Margarete Schutte Lihotzky Frankfurt Kitchen Frankfurter Kuche Kitchen Fittings Home Furniture

Rare Margarete Schutte Lihotzky Frankfurt Kitchen Frankfurter Kuche Kitchen Fittings Home Furniture

Frankfurter Kuche Bauhaus Mobel Kuche Moderne Kuche

Frankfurter Kuche Bauhaus Mobel Kuche Moderne Kuche

Frankfurter Kuche Bauhaus Mobel Kuche Moderne Kuche

Some 10 000 units were built in the late 1920s in frankfurt.

Frankfurt kueche. Find tripadvisor traveler reviews of frankfurt german restaurants and search by price location and more. In 1930 the soviet. It was designed in 1926 by austrian architect margarete schütte lihotzky for architect ernst may s social housing project new frankfurt in frankfurt germany. The 15 best places with good service in frankfurt am main the 15 best places that are good for groups in frankfurt am main deutschland hessen frankfurt am main.

Maybe it really should be named the vienna kitchen. In the end decorations clocks knick knacks gradually found their way back into the clean utility of the kitchen. Food event in frankfurt germany by margarete restaurant frankfurt and 2 others on wednesday september 9 2020 with 196 people interested. See 136 unbiased reviews of frankfurter kueche rated 4 of 5 on tripadvisor and ranked 349 of 2 330 restaurants in frankfurt.

Margarete Schutte Lihotzky Frankfurter Kuche Cocina Frankfurt Disenada Para La Siedlung Romerstadt De Erns Kitchen Interior Kitchen Design Modern Kitchen

Margarete Schutte Lihotzky Frankfurter Kuche Cocina Frankfurt Disenada Para La Siedlung Romerstadt De Erns Kitchen Interior Kitchen Design Modern Kitchen

Frankfurter Kuche Bauhaus Mobel Bauhaus Moderne Kuche

Frankfurter Kuche Bauhaus Mobel Bauhaus Moderne Kuche

50er 60er J Kuchenzeile Auszieh Tisch Frankfurter Kuche Buffet Rockabilly Mid C Kuche 50er Kuche 60er Kuche

50er 60er J Kuchenzeile Auszieh Tisch Frankfurter Kuche Buffet Rockabilly Mid C Kuche 50er Kuche 60er Kuche

Helle Kuche In Frankfurt In 2020 Kuchen Inspiration Kuche Kuche Einrichten

Helle Kuche In Frankfurt In 2020 Kuchen Inspiration Kuche Kuche Einrichten

Margarete Schutte Lihotzky Frankfurter Kuche Cocina Frankfurt Disenada Para La Siedlung Romerstadt De Ernst May 1926 Frankfurt Design Fur Zuhause Kuche

Margarete Schutte Lihotzky Frankfurter Kuche Cocina Frankfurt Disenada Para La Siedlung Romerstadt De Ernst May 1926 Frankfurt Design Fur Zuhause Kuche

Foto Ausstellung Architekturmuseum Guckt Ernst May In Die Kuche Welt Kuche Innenarchitektur Haus Dekoration

Foto Ausstellung Architekturmuseum Guckt Ernst May In Die Kuche Welt Kuche Innenarchitektur Haus Dekoration

Grundriss Der Frankfurter Kuche Abbildung C Betonliebe Com Funktionalismus Kuche Grundriss Ikonen

Grundriss Der Frankfurter Kuche Abbildung C Betonliebe Com Funktionalismus Kuche Grundriss Ikonen

Die Frankfurter Kuche Im Museum Of Modern Art In New York Mit Bildern Kuchendesign Kuchendekoration Kuchen Inspiration

Die Frankfurter Kuche Im Museum Of Modern Art In New York Mit Bildern Kuchendesign Kuchendekoration Kuchen Inspiration

Kuchen Frankfurt Inspirational Flamme Kuchen Frankfurt Kuche De Paris Di 2020 Rumah Minimalis Rumah Dan Minimalis

Kuchen Frankfurt Inspirational Flamme Kuchen Frankfurt Kuche De Paris Di 2020 Rumah Minimalis Rumah Dan Minimalis

Margarete Schutte Lihotzky Austrian 1897 2000 Frankfurter Kuche Frankfurt Kitchen 1926 7 As Illustrated In Das Neue Fra Kitchen Design Modern Frankfurt

Margarete Schutte Lihotzky Austrian 1897 2000 Frankfurter Kuche Frankfurt Kitchen 1926 7 As Illustrated In Das Neue Fra Kitchen Design Modern Frankfurt

Marmorputz Kalkputz Wandgestaltung In Wiesbaden Und Frankfurt Kunstliche Ziegelwande Tapete Kuche Und Steintapete

Marmorputz Kalkputz Wandgestaltung In Wiesbaden Und Frankfurt Kunstliche Ziegelwande Tapete Kuche Und Steintapete

Ein Modell Der Frankfurter Kuche Wie Sie In Der Dauerausstellung Des Hmf Bis Marz 2011 Zu Sehen War C Hmf Foto H Ziegenfusz Kuche Wohnen Kuchen Ideen

Ein Modell Der Frankfurter Kuche Wie Sie In Der Dauerausstellung Des Hmf Bis Marz 2011 Zu Sehen War C Hmf Foto H Ziegenfusz Kuche Wohnen Kuchen Ideen

Frankfurter Kuche 1926 Schutte Lihotzky Margarete Grumbach Frankfurt Zugeschrieben Fur Das Stadtische Hochbauamt Frankfurt Kuche Frankfurt Stadtisch

Frankfurter Kuche 1926 Schutte Lihotzky Margarete Grumbach Frankfurt Zugeschrieben Fur Das Stadtische Hochbauamt Frankfurt Kuche Frankfurt Stadtisch

This Is A Scan Of An Original Postcard Showing An Installation Of Grete Schutte Lihotzky S Frankfurt Kitchen At Kuchendesign Moderne Kuchenideen Pariser Kuchen

This Is A Scan Of An Original Postcard Showing An Installation Of Grete Schutte Lihotzky S Frankfurt Kitchen At Kuchendesign Moderne Kuchenideen Pariser Kuchen

Gemutliches Kuche In Frankfurt Am Main Mit Fliesenboden Und Blick Ins Grune Wohnung In Frankfurt Frankfurt Kuc Kuche Einrichten Kuchen Inspiration Wohnung

Gemutliches Kuche In Frankfurt Am Main Mit Fliesenboden Und Blick Ins Grune Wohnung In Frankfurt Frankfurt Kuc Kuche Einrichten Kuchen Inspiration Wohnung

Schone Kuche In Frankfurter Altbau Im Stadtteil Nordend West Wohnen In Frankfurt Frankfurt Wohneindrucke Main Kitchen Kuc Wohnen Schone Kuchen Wohnung

Schone Kuche In Frankfurter Altbau Im Stadtteil Nordend West Wohnen In Frankfurt Frankfurt Wohneindrucke Main Kitchen Kuc Wohnen Schone Kuchen Wohnung

Margarete Schutte Lihotzky S Ground Breaking Fitted Kitchen For Ernst May S Terraced Housing Developments In The Siedlung Ro Bauhaus Interior May Haus

Margarete Schutte Lihotzky S Ground Breaking Fitted Kitchen For Ernst May S Terraced Housing Developments In The Siedlung Ro Bauhaus Interior May Haus

Frankfurt Kuche Cerca Con Google Kitchen Interior Home Decor

Frankfurt Kuche Cerca Con Google Kitchen Interior Home Decor

In 1926 Architect Margarte Schutte Lihotzky Concipated The So Called Frankfurter Kuche With Inspiration From Scientific Management And Design Urbanismo Casas

In 1926 Architect Margarte Schutte Lihotzky Concipated The So Called Frankfurter Kuche With Inspiration From Scientific Management And Design Urbanismo Casas

Rare Margarete Schutte Lihotzky Frankfurt Kitchen Frankfurter Kuche Libanesische Kuche Kuche Frankfurt

Rare Margarete Schutte Lihotzky Frankfurt Kitchen Frankfurter Kuche Libanesische Kuche Kuche Frankfurt

Margarete Schutte Lihotzky Frankfurter Kuche Cocina Frankfurt Disenada Para La Siedlung Romerstadt De Ernst May Kuche Kuchenutensilien Kuchen Utensilien

Margarete Schutte Lihotzky Frankfurter Kuche Cocina Frankfurt Disenada Para La Siedlung Romerstadt De Ernst May Kuche Kuchenutensilien Kuchen Utensilien

Margarete Schutte Lihotzky Frankfurter Kuche Cocina Frankfurt Disenada Para La Siedlung Romerstadt De Ernst Francfort Element De Cuisine Cuisine Equipee

Margarete Schutte Lihotzky Frankfurter Kuche Cocina Frankfurt Disenada Para La Siedlung Romerstadt De Ernst Francfort Element De Cuisine Cuisine Equipee

Frankfurt Kitchen By Margarete Schutte Lihotsky Mostly Images By Dunya Modern Kitchen Kitchen Interior Kitchen Inspirations

Frankfurt Kitchen By Margarete Schutte Lihotsky Mostly Images By Dunya Modern Kitchen Kitchen Interior Kitchen Inspirations

Kuchenstudio Kurttas Mit Wie Eine Kuche Meisterwerk Www Kuechenstudio Kurttas De Kurttaskuchen Kuchenstudio Kuechenstudio Kur Kuchenstudio Kuche Studio

Kuchenstudio Kurttas Mit Wie Eine Kuche Meisterwerk Www Kuechenstudio Kurttas De Kurttaskuchen Kuchenstudio Kuechenstudio Kur Kuchenstudio Kuche Studio

Mainlust 15 In Frankfurt Wohungsdekoration Studioappartement Dekoration Haus Kuchen

Mainlust 15 In Frankfurt Wohungsdekoration Studioappartement Dekoration Haus Kuchen

In Der Kuchendekoration Sind Details Wichtig Kurttas Kuchenstudio Entwirft Alle Kuchen Mit Grosser Sorgf Moderne Kuche Wohnung Kuche

In Der Kuchendekoration Sind Details Wichtig Kurttas Kuchenstudio Entwirft Alle Kuchen Mit Grosser Sorgf Moderne Kuche Wohnung Kuche

A Complete History Of The Frankfurt Kitchen Nonagon Style Kitchen Design Modern Kitchen Kitchen Cabinetry

A Complete History Of The Frankfurt Kitchen Nonagon Style Kitchen Design Modern Kitchen Kitchen Cabinetry

So Schon Und So Vintage Kleiner Schuttenschrank Aus Einer Frankfurter Kuche Mit 4 Aluminium Schutten Www Frankfurt Minimal De

So Schon Und So Vintage Kleiner Schuttenschrank Aus Einer Frankfurter Kuche Mit 4 Aluminium Schutten Www Frankfurt Minimal De

Kuchen Frankfurt Inspirational Safak Kuchen Frankfurt Reddy Kchen Fellbach Awesome Ein In 2020 Wohn Design Wohnen Dekor

Kuchen Frankfurt Inspirational Safak Kuchen Frankfurt Reddy Kchen Fellbach Awesome Ein In 2020 Wohn Design Wohnen Dekor

Bax Kuche Modell Corwall Heyne Lehmhaus Kuchenraume Lehmhaus Kuche Kuchenstudio

Bax Kuche Modell Corwall Heyne Lehmhaus Kuchenraume Lehmhaus Kuche Kuchenstudio

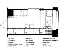
Frankfurt Kitchen Plan Modern Kitchen Kitchen Design Frankfurt

Frankfurt Kitchen Plan Modern Kitchen Kitchen Design Frankfurt

Nova Musterkuche Bei Flamme Mobel Frankfurt Kuchen Mobel Kuche Musterkuchen

Nova Musterkuche Bei Flamme Mobel Frankfurt Kuchen Mobel Kuche Musterkuchen

Smart Before There Was Smart The Frankfurt Kitchen Tuscan Kitchen Design Home Decor Kitchen Tuscan Kitchen

Smart Before There Was Smart The Frankfurt Kitchen Tuscan Kitchen Design Home Decor Kitchen Tuscan Kitchen

Alter Shabby Chic Kuchenstuhl Stuhl Frankfurter Kuche Bauhaus Art Deco Vintage Stuhle Art Deco Bauhaus

Alter Shabby Chic Kuchenstuhl Stuhl Frankfurter Kuche Bauhaus Art Deco Vintage Stuhle Art Deco Bauhaus

Frankfurter Kuche Ernst May Haus Haus Frankfurt Kuche

Frankfurter Kuche Ernst May Haus Haus Frankfurt Kuche

Frankfurter Kuche Bauhaus Zu Verkaufen Bauhaus Haus Kuchenschrank

Frankfurter Kuche Bauhaus Zu Verkaufen Bauhaus Haus Kuchenschrank

8linden I Edelstahlkuche Linear I Kuchen Aus Frankfurt Edelstahlkuchen Kuchen Inspiration Kuche

8linden I Edelstahlkuche Linear I Kuchen Aus Frankfurt Edelstahlkuchen Kuchen Inspiration Kuche

Kuchen Frankfurt New Uber Uns Ihr Team Fur Kuchen In Frankfurt Am Main Reddy In 2020 Frankfurt Am Main Frankfurt Maine

Kuchen Frankfurt New Uber Uns Ihr Team Fur Kuchen In Frankfurt Am Main Reddy In 2020 Frankfurt Am Main Frankfurt Maine

The 1926 Frankfurter Kuche Bauhaus Interior Inexpensive Furniture Kitchen Trends

The 1926 Frankfurter Kuche Bauhaus Interior Inexpensive Furniture Kitchen Trends

So Schon Kann Ordnung In Der Kuche Sein Https Www Kuechenstudio Kurttas De Kurttas Kuchenstudio Ku Kuchendesign Modern Kuchenaufbewahrung Kuchenstudio

So Schon Kann Ordnung In Der Kuche Sein Https Www Kuechenstudio Kurttas De Kurttas Kuchenstudio Ku Kuchendesign Modern Kuchenaufbewahrung Kuchenstudio

Bax Kuche Modell Corwall Mattlack Kuchenraume Heyne Lehmhaus Lehmhaus Kuche Kuchenstudio

Bax Kuche Modell Corwall Mattlack Kuchenraume Heyne Lehmhaus Lehmhaus Kuche Kuchenstudio

Minimalistische Kuche Fur Mehr Kuchenstudio Minimalistische Kuche Kuche

Minimalistische Kuche Fur Mehr Kuchenstudio Minimalistische Kuche Kuche

Frankfurter Kueche Schuttenschrank Mit 8 Schuetten Von Margarete Schuette Lihotzky Schrank Stammt Aus Einer Original Frankfurter Kitchen Board Design Kitchen

Frankfurter Kueche Schuttenschrank Mit 8 Schuetten Von Margarete Schuette Lihotzky Schrank Stammt Aus Einer Original Frankfurter Kitchen Board Design Kitchen

Sonstige Musterkuche Mit Top Geraten Die Kuche Kann Auch Ohne Sitzmoglichkeit Gekauft Werden Stattdessen Konnten In 2020 Musterkuchen Sitzmoglichkeiten Unterschrank

Sonstige Musterkuche Mit Top Geraten Die Kuche Kann Auch Ohne Sitzmoglichkeit Gekauft Werden Stattdessen Konnten In 2020 Musterkuchen Sitzmoglichkeiten Unterschrank

Source : pinterest.com